REGISTER NOW
The ASTON
35' Lot - 2,782 sq. ft.

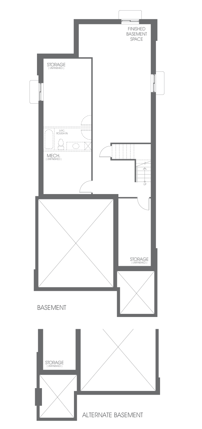
PLUS 448 sq. ft. of finished basement space

Download PDFTake a Virtual Tour
Ground Floor
Second Floor
Basement

Authentically Modern Townhomes, Single Family Homes and Semi Detached Homes Designed by Award Winning Architect Christopher Simmonds

Featured Communities