REGISTER NOW
The Brighton
2,159 sq. ft.

Includes 440 sq. ft. of finished lower level

Download PDFTake a Virtual Tour
Front
Rear
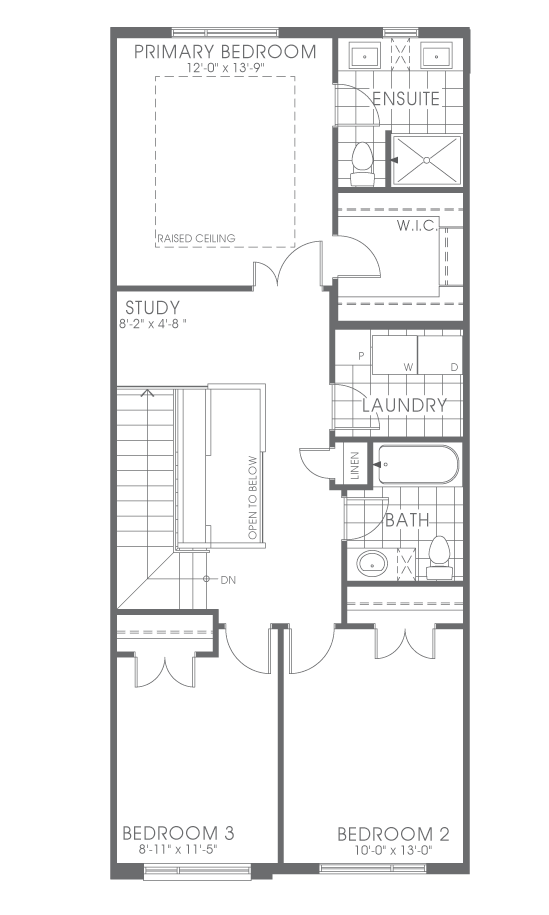
Ground Floor
Second Floor
Basement
Aerial Videos - Townhomes

Discover the attention to detail and craftmanship put into every HN home

explore now

Authentically Modern Townhomes, Single Family Homes and Semi Detached Homes Designed by Award Winning Architect Christopher Simmonds

Featured Communities